Подстанция трансформаторная комплектная КТП-ЭТС-Б 110/35/10(6) кВ
Подстанция
трансформаторная
комплектная
КТП-ЭТС-Б 110/35/10(6) кВ
Назначение и область применения
Комплектные трансформаторные подстанции КТП-ЭТС-Б предназначены для приема, преобразования и распределения электрической энергии трехфазного переменного тока. Подстанции эксплуатируются в электросетевых, нефтегазовых компаниях, промышленности, коммунальном хозяйстве.

КТП-ЭТС-Б предназначены для работы при следующих условиях:
  • температурный диапазон: от минус 60 до +40 °С;
  • I-IV районы по ветру и гололеду;
  • механический фактор внешней среды - М1 по ГОСТ 17516.1-90;
  • тип атмосферы - II по ГОСТ 15150-69.

Подстанции изготавливаются по всем действующим в стране типовым схемам электрических соединений. Поставка подстанции осуществляется блоками полной заводской готовности, что позволяет сократить время монтажа, повысить качество изделия, увеличить надежность работы оборудования. В процессе эксплуатации конструкция оборудования позволяет произвести поэтапное расширение подстанции без дополнительных работ по реконструкции. Подстанции снабжены микропроцессорными системами защит, телемеханизированы. По желанию заказчика подстанции могут быть укомплектованы отечественным либо зарубежным оборудованием. Возможна комплектация автоматизированной системой управления.

Назначение и область применения
Комплектные трансформаторные подстанции КТП-ЭТС-Б предназначены для приема, преобразования и распределения электрической энергии трехфазного переменного тока. Подстанции эксплуатируются в электросетевых, нефтегазовых компаниях, промышленности, коммунальном хозяйстве.

КТП-ЭТС-Б предназначены для работы при следующих условиях:
  • температурный диапазон: от минус 60 до +40 °С;
  • I-IV районы по ветру и гололеду;
  • механический фактор внешней среды - М1 по ГОСТ 17516.1-90;
  • тип атмосферы - II по ГОСТ 15150-69.

Подстанции изготавливаются по всем действующим в стране типовым схемам электрических соединений. Поставка подстанции осуществляется блоками полной заводской готовности, что позволяет сократить время монтажа, повысить качество изделия, увеличить надежность работы оборудования. В процессе эксплуатации конструкция оборудования позволяет произвести поэтапное расширение подстанции без дополнительных работ по реконструкции. Подстанции снабжены микропроцессорными системами защит, телемеханизированы. По желанию заказчика подстанции могут быть укомплектованы отечественным либо зарубежным оборудованием. Возможна комплектация автоматизированной системой управления.
ПРЕИМУЩЕСТВА И КОНСТРУКТИВНЫЕ ОСОБЕННОСТИ
ПРЕИМУЩЕСТВА И КОНСТРУКТИВНЫЕ ОСОБЕННОСТИ
ТЕХНИЧЕСКИЕ ПАРАМЕТРЫ И ХАРАКТЕРИСТИКИ КТПБ-ЭТС-Б(М) 110/35 кВ
ТЕХНИЧЕСКИЕ ПАРАМЕТРЫ
И ХАРАКТЕРИСТИКИ
КТПБ-ЭТС-Б(М) 110/35 кВ
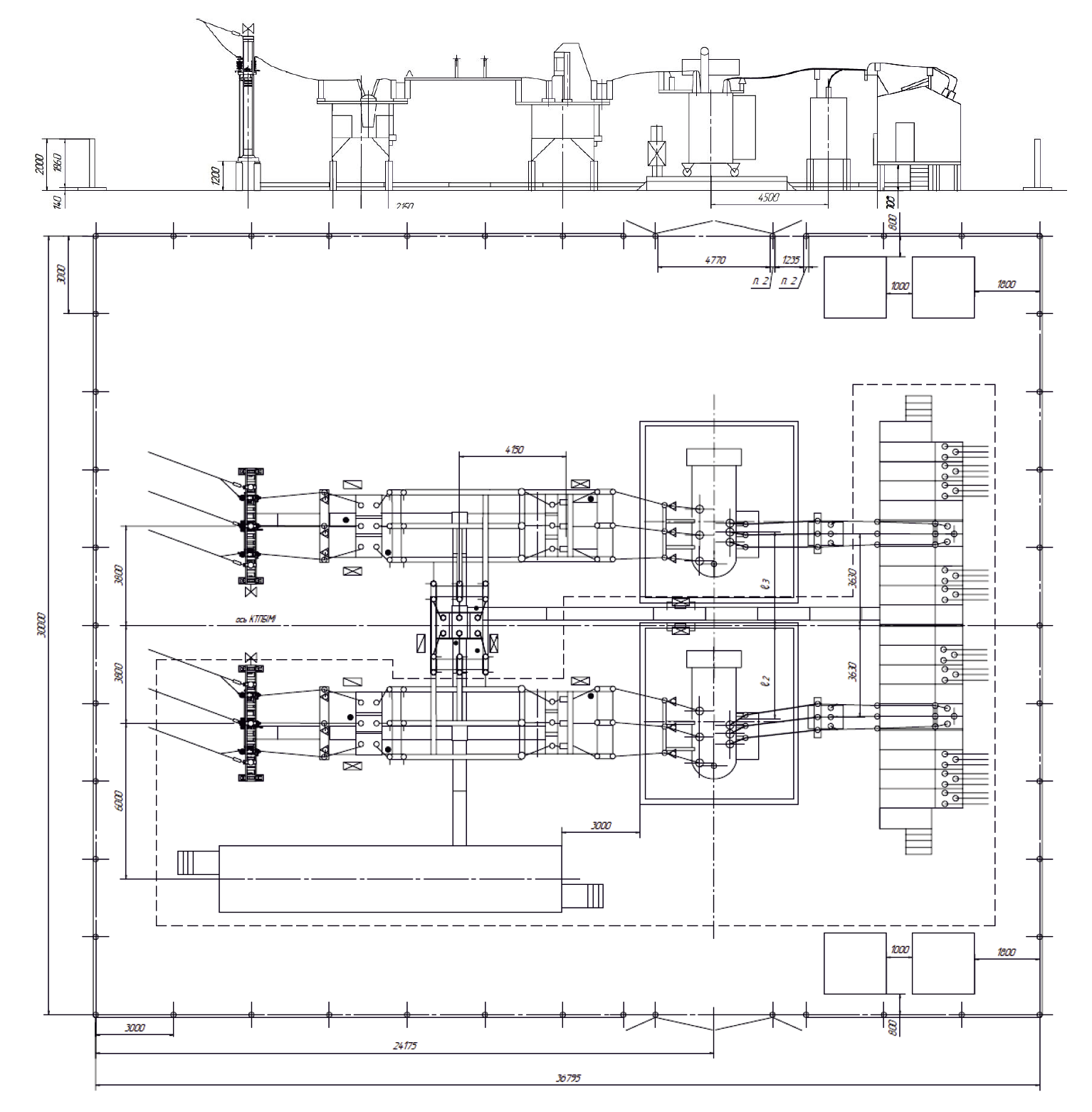
Пример размещения оборудования КТП-ЭТС-Б-35кВ
Пример размещения
оборудования КТП-ЭТС-Б-35кВ